En venta
Elda, Ficia

Oportunidad para inversores en Elda

1247 Referencia
3 Habitaciones
2 Baños
245.00m2 Metros
139.000 € Ha bajado 8.000 €
️ Oportunidad para inversores en Elda
Se vende amplia vivienda en planta baja de 245 m². construidos, situada a un paso de la Ficia y de la Avenida de las Olimpiadas, una de las zonas más demandadas de Elda.
Esta propiedad ofrece múltiples posibilidades de desarrollo, siendo ideal para inversores o promotores que busquen un proyecto con alta rentabilidad.
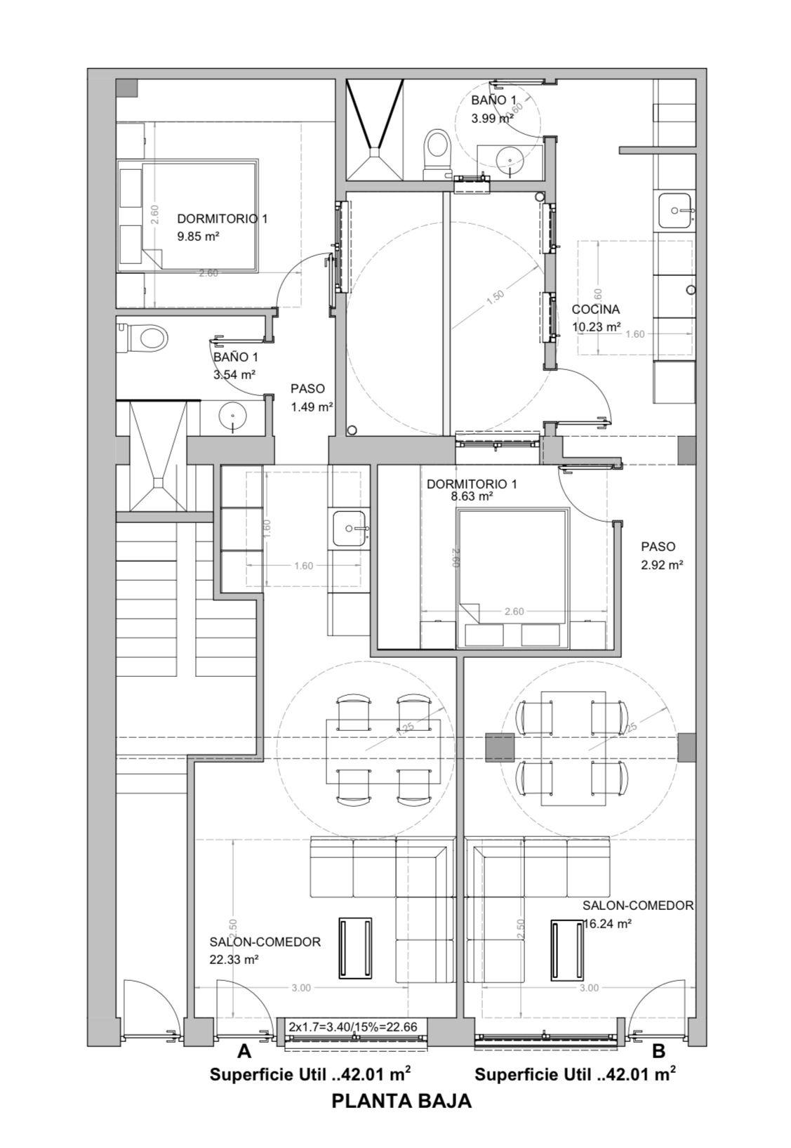
El inmueble permite la transformación en un edificio con cuatro viviendas independientes, distribuidas de la siguiente forma:
Dos viviendas en planta baja, de un dormitorio cada una, ambas con patio privado.
Dos viviendas en planta alta, también de un dormitorio cada una.
En la parte superior, una terraza comunitaria que aportará valor y atractivo al conjunto residencial.
Se entrega plano de propuesta de distribución para visualizar el potencial del proyecto.
Gracias a su excelente ubicación, amplitud y versatilidad, esta propiedad representa una magnífica oportunidad de inversión, ideal tanto para la obtención de rentabilidad por alquiler como para la posterior venta de las viviendas una vez finalizado el desarrollo.
Descargar PDF Calcular hipoteca
%
años
Calcular

Datos

Referencia
1247
Tipo
Edificio
Ciudad
Elda
Zona
Ficia
Planta
0
Código postal
03600

Características

Habitaciones
3
Baños
2
Nº Plantas
2
Antigüedad
1962
Superficie útil
230.00m2
Superficie construida
245.00m2
Superficie terraza
30.00m2
Estado
De origen
Carpintería exterior
Madera
Tipo exterior
Mixto

Extras

Armarios empotrados
Balcón
Despensa
Lavanderia
Patio
Terraza
Califcación energética Aportado
Consumo kW h/m2 Año
Emisiones Kg CO2/m2 Año
A
Más eficiente
B
C
D
E
F
162
82
G
Menos eficiente
Contacta con el agente

Rellena los datos para descargar

Te enviaremos la descarga de la guía a tu correo electrónico.

Rellena tus datos

Te contactaremos lo antes posible para que puedas recibir asesoramiento

Uso de Cookies

Utilizamos cookies propias y de terceros para información estadística y mejorar tu navegación. Para continuar navegando debes aceptar nuestra política de cookies.

Aceptar Rechazar